在水利工程、灌区调控、城市排涝等水流控制场景中,滚轮式钢制闸门 GLZ 系列凭借启闭阻力小、适配范围广的优势,成为高频选型设备。本文在基础参数之上深度优化内容维度,从 “参数解析 + 场景适配 + 选型避坑” 三个层面,准确匹配工程方、采购方的实际需求。

针对水利工程中 “启闭费力、场景适配窄、定制成本高” 的痛点,GLZ 系列做了定向设计:
启闭更省力:采用滚轮支承结构,相比滑动闸门启闭阻力降低约 30%,适配大尺寸闸门的高频操作;
场景全覆盖:支持 2-10m 水头、1×1m 至 10×10m 闸门尺寸,覆盖小型灌区、大型排涝工程等全场景;
定制更灵活:支持滚轮 / 滑动支承切换、异形闸门定制,同时兼容单 / 双吊点启闭机,适配不同工程条件。
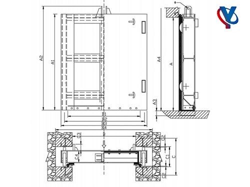
将参数按 “核心尺寸 + 安装适配 + 场景指标” 拆分,降低信息筛选成本:
| 型号规格 | 闸门核心尺寸(mm) | 基础安装尺寸(mm) | 场景适配指标 | |||
|---|---|---|---|---|---|---|
| 净宽 A | 净高 B | 基础总宽 A4 | 基础总长 B4 | 适配水头(m) | 建议启闭机类型 | |
| GLZ-1000×1000 | 1000 | 1000 | 2400 | 1360 | 2 | 单吊点启闭机 |
| GLZ-2000×2000 | 2000 | 2000 | 4400 | 2360 | 3 | 单吊点启闭机 |
| GLZ-3000×3000 | 3000 | 3000 | 6400 | 3500 | 4 | 双吊点启闭机 |
| GLZ-4000×4000 | 4000 | 4000 | 8400 | 4560 | 5 | 双吊点启闭机 |
| GLZ-5000×5000 | 5000 | 5000 | 10400 | 5640 | 6 | 双吊点启闭机 |
| GLZ-6000×6000 | 6000 | 6000 | 12400 | 6640 | 6 | 双吊点启闭机 |
| GLZ-7000×7000 | 7000 | 7000 | 14500 | 7720 | 7 | 双吊点启闭机 |
| GLZ-8000×8000 | 8000 | 8000 | 16500 | 8720 | 8 | 双吊点启闭机 |
| GLZ-9000×9000 | 9000 | 9000 | 18500 | 9800 | 9 | 双吊点启闭机 |
| GLZ-10000×10000 | 10000 | 10000 | 20500 | 10800 | 10 | 双吊点启闭机 |
针对工程中 3 类典型场景,直接给出对应选型建议:
进水渠道场景:建议闸门前上游三边止水,优先选 GLZ-1000~3000 规格,适配小型灌区水流调控;
进水闸孔场景:建议闸后下游四边止水,适配 GLZ-2000~5000 规格,满足城市给排水闸孔控制;
大流量排涝场景:选 GLZ-6000~10000 规格,搭配双吊点启闭机 + 滚轮支承,适配大型河道排涝需求。
支承方式勿选错:若工程要求低阻力启闭,优先保留滚轮支承;若需降低成本,可切换为滑动支承(需提前沟通);
启闭机勿超配 / 错配:3000 规格以上用双吊点启闭机,否则会出现闸门受力不均、卡顿问题;
水头需留安全冗余:实际水头建议不超过型号适配水头的 90%(如 GLZ-2000 适配 3m 水头,实际建议≤2.7m)

一、引言:为什么平板钢制闸门结构图是水利工程的“技术基石”在水利水电、城市给排水···

在水电站运行安全的核心环节中,泄洪闸门是抵御*端洪水、保障大坝结构稳定的“**道防线···

在汛期洪峰突袭的紧急关头,每一秒都关乎下游百姓安危。防洪工程拦水闸卷扬启闭机快速···

在大型灌区工程中,卷扬启闭机是保障闸门启闭安全、**运行的核心设备。一套性能稳定、···

在市政排水系统中,小型电动卷扬启闭机是保障闸门启闭**、运行可靠的关键设备。根据额···

在污水处理厂中,卷扬启闭机是控制闸门启闭的关键设备,其运行稳定性直接关系到整个系···

在众多河道治理工程中,10-50吨级卷扬启闭机是保障闸门启闭**、运行可靠的“核心动力”···

在大型水库工程中,大吨位卷扬启闭机承担着闸门启闭的核心任务,尤其双吊点同步运行更···

在现代城市排水系统中,15 吨市政排水卷扬启闭机电动款远程控制操作指南|技术参数,早···

在中小型水利渠系、灌区引水工程中,5 吨小型渠道卷扬启闭机凭借其结构紧凑、操作灵活···